Mapa
Vídeo
Cod: 388088

Condomínio - Comercial - Jardim Paulista

Alameda Lorena - Jardim Paulista - São Paulo / SP

Casa de vila comercial muito bem conservada. Foi projetada pelo Arquiteto Flavio de Carvalho, modernista em meados de 1930.
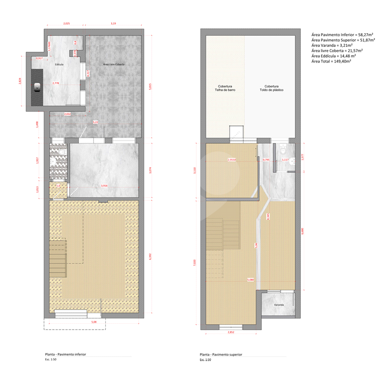
São 149,40m² de área útil, dois pavimentos, copa, dois banheiros.
Localização espetacular, perto do Supermercado Santa Luzia, próxima a MInistro Rocha Azevedo.
O seu negócio ficara num espaço bem exclusivo

Locação
R$ 15.000,00
*Valores de preço, características, condomínio
e IPTU sujeitos a confirmação.
IPTU
R$ 1.000,00
 

Explore o mapa e Conheça Jardim Paulista

Nossos diferenciais

Pessoas e tecnologia em perfeito equilíbrio

Especialistas que cuidam de tudo para você

Assessoria que te dá segurança

Como é fácil fazer negócios com a Local!

1. Escolha do seu imóvel

Você escolhe seu imóvel em nosso site e é atendido por um de nossos especialistas que irá tirar todas as suas dúvidas.

2. Visita  

Esse é o momento de você conhecer in-loco o imóvel ou mais opções e se apaixonar pessoalmente por eles.

3. Proposta

Nesta fase você fará uma proposta comercial pelo imóvel que mais gostou e iniciaremos as negociações para chegarmos ao contrato.

4. Assinatura do contrato 

Aqui nós cuidamos de toda a documentação envolvendo as pessoas e o negócio e marcamos a assinatura do contrato, que pode ser digital ou presencial.

5. Pós-venda 

Nesta última fase, nossos profissionais te acompanharão até a escritura e registros cartorários e agora, sim!... Você recebe as chaves do imóvel e é hora de comemorar!